Leave a Message

Thank you for your message. We will be in touch with you shortly.

Explore Our Properties

Property Description

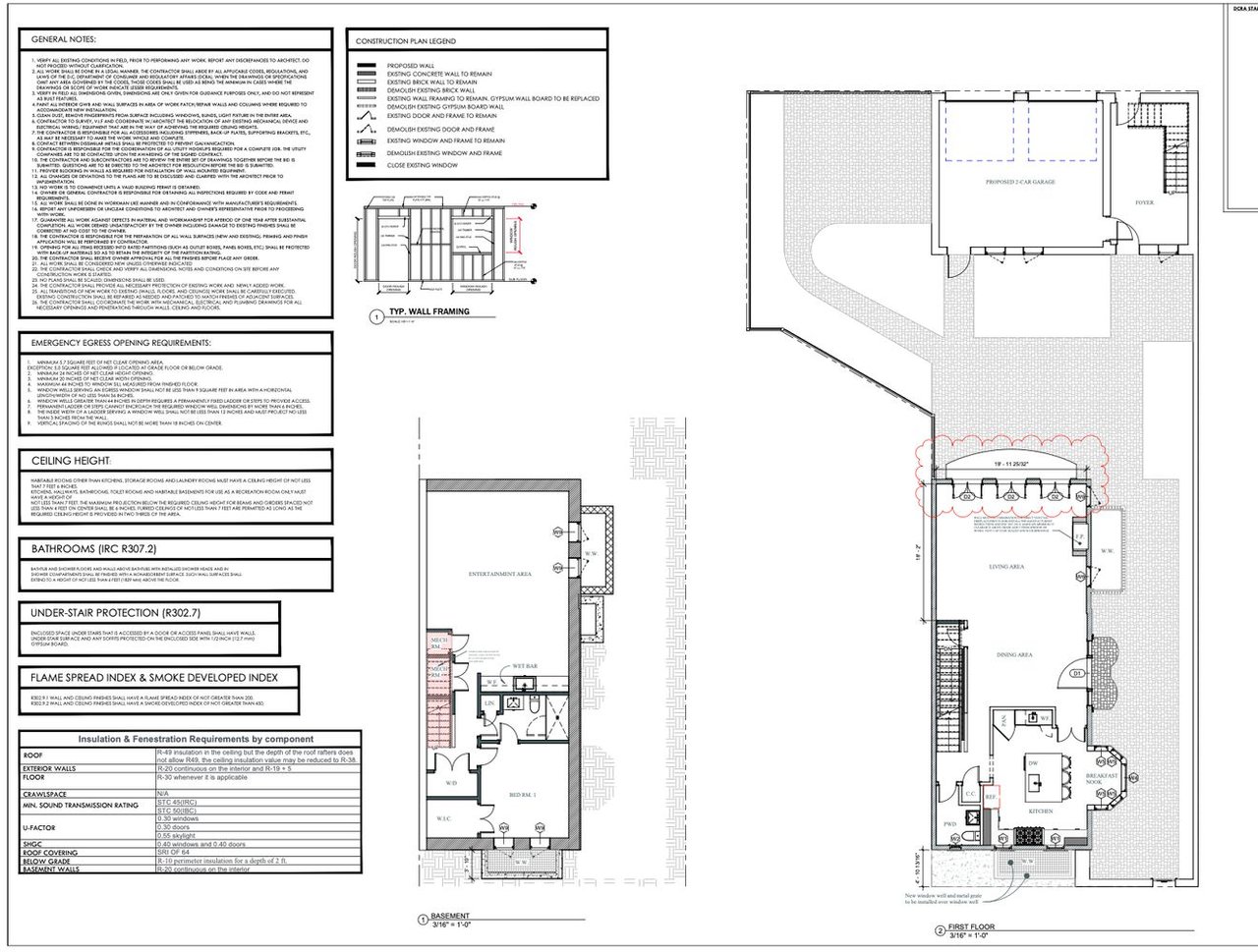
A rare, newly renovated estate style home by the award-winning Dilan Homes. Situated on an oversized lot in the heart of Capitol Hill, this modern classic offers nearly 5,000 square feet of exquisite living space within a grand main residence and a separate large two-level carriage house.

Bathed in natural sun light from southern, eastern, and western exposures, the home’s stunning architectural presence overlooks expansive private gardens. The highly desirable location is unparalleled—just steps from Eastern Market, the US Capitol, Lincoln Park, and the Hill’s premier dining venues.

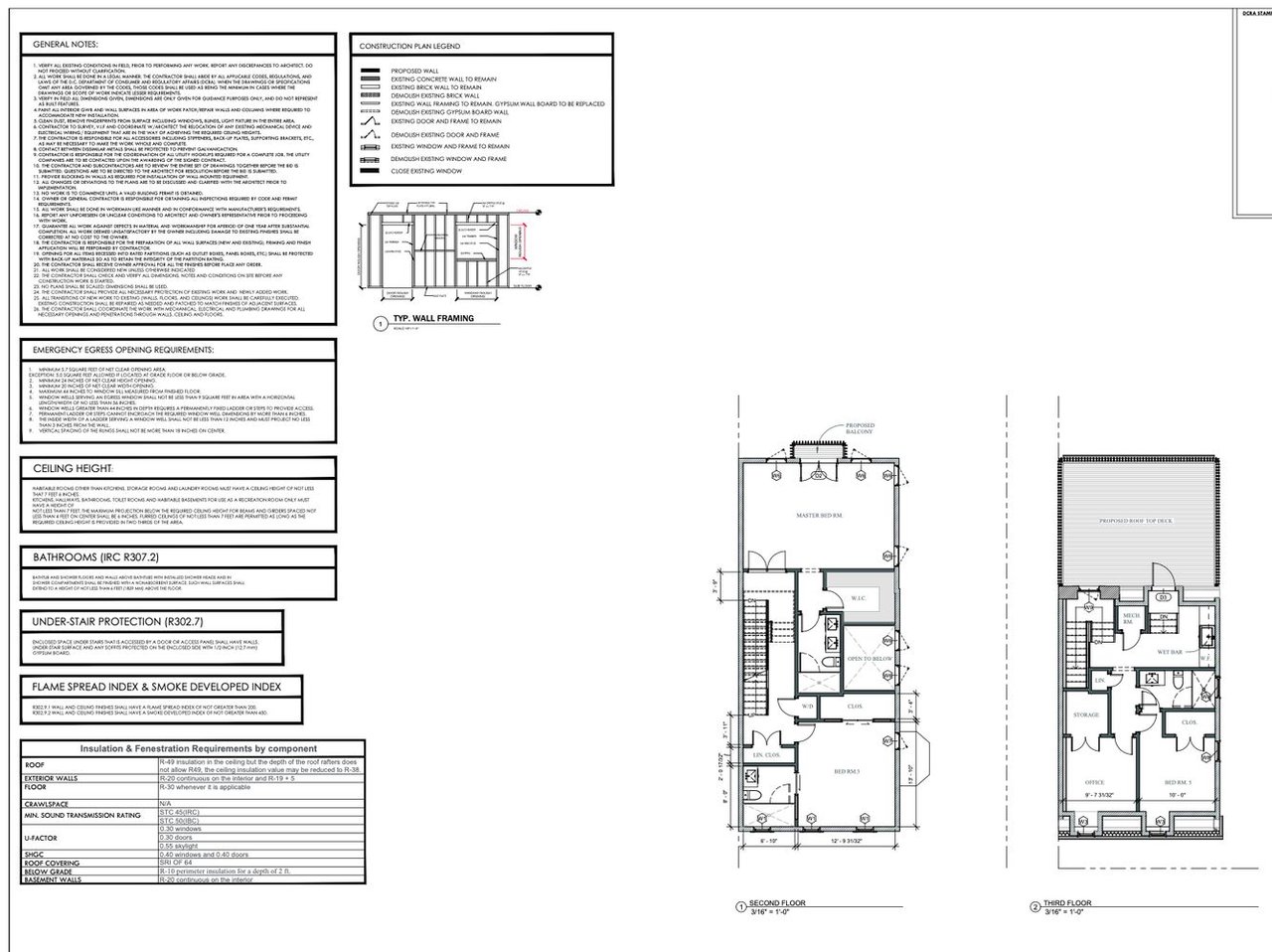
The four-level main residence features soaring ceilings and through a dramatic wall of glass is the perfect relationship between the inside and the lovely gardens. The main level, enhanced by white oak flooring, fireplace, and a luxury entertainer’s kitchen that opens to generous living and dining areas. Ascend to the second-floor primary suite featuring a walk-in closet, a private terrace plus an additional bedroom/full bath, upward to the third floor to find two additional guest suites and a spectacular walk-out roof deck overlooking the gardens and sky. At your disposal is a convenient indoor wet bar. The bright and beautifully finished lower level adds a generous media room and an additional private guest suite.

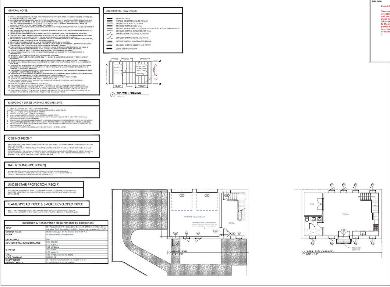
In addition this estate includes a newly restored/renovated detached carriage house featuring a versatile one-bedroom apartment—perfect for a home office or guest quarters—situated above a two-car garage with separate utilities.

Delivery: July of 2026

Overview

Property Status
compass coming soon

Features & Amenities

Garage Spaces
2
Appliances
Washer, Dryer
Sales Price
$3,849,002

Downloads

228 9th St SE

Schedule a Tour

We would love to help you see this beautiful home! As a full-service brokerage, we can help you tour. Please submit an offer, and answer questions about the buying process.

Thank you

for your interest in 228 9th St SE, Washington, DC 20003

228 9th St SE
Navigate

Mortgage Calculator

Estimate your monthly mortgage payment, including the principal and interest, property taxes, and HOA. Adjust the values to generate a more accurate rate.
$0,000 Your Payment 20 15 65
$0,000 Your Payment

Follow Us On Instagram